Übersicht         Aktuelles         Projekte        Wettbewerbe        Konzepte         Büro             Kontakt      

 

2014 - WETTBEWERB: HBLW - Neumarkt, Küchenneubau


gemeinsam mit Arch. DI. Rupert Krallinger


Neubau der Betriebsküche, des Restaurants und von drei Lehrküchen mit den dazugehörigen Nebenräumen

AUFGABENSTELLUNG:


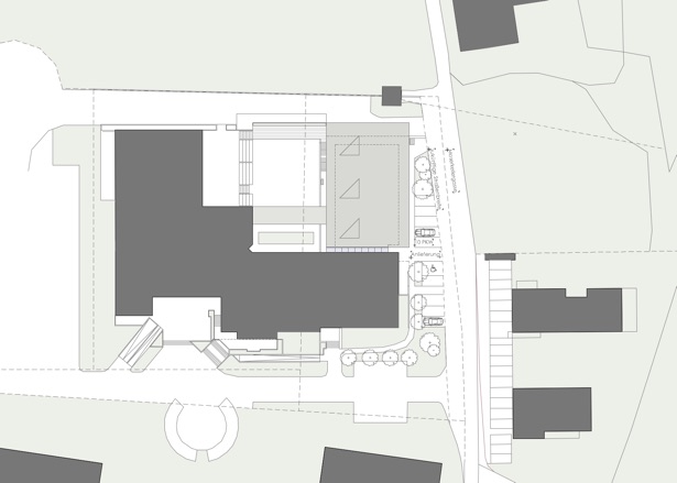
An der HLW-Neumarkt ist ein Neubau der Betriebsküche, des Restaurants und von drei Lehrküchen mit den dazugehörigen Nebenräumen geplant. Weitere Adaptierungsmaßnahmen, wie die Nachnutzung der bestehenden Lehrküchen und Übungsrestaurant in einen kooperativen Lernbereiche (Cool-Bereich) können durch den Neubau ermöglicht werden. Die Situierung des Küchenneubaues befindet sich im Bereich der derzeitigen Turnhalle die abgebrochen und durch einen Neubau an anderer Stelle ersetzt wird.


ENTWURF KÜCHENTRAKT:


Der neue zweigeschossige Baukörper wird im Bereich des derzeitigen Turnsaales mit Distanz zum Bestand eingefügt. Die dadurch entstehende „Fuge“ zum ostseitigen Schultrakt kann als Belichtungs- und Erschließungszone genutzt werden. Die andere „Fuge“ zum bestehenden Festsaal setzt sich vom Schulhof im 1. OG bis in das 2. UG fort und dient ebenfalls als Belichtungszone und kann darüberhinaus auch als zusätzlicher Fluchtweg genutzt werden.

Der neue Baukörper soll sich ruhig aber auch selbstbewusst in das ansonsten differenzierte Erscheinungsbild des bestehenden Schulgebäudes einfügen und eine neue zeitgemäße Formensprache nach Außen tragen.