Übersicht         Aktuelles         Projekte        Wettbewerbe        Konzepte         Büro             Kontakt      

 

Planung: 1999
Bauzeit: 1999 - 2001

Kennwerte:
BGF: 1 736 m2
BRI: 6 436 m3
NGF: 1 574 m2

NF: 938 m2
VSF: 496 m2
VKF: 139 m2

Netto - Baukosten gem. ÖNORM B1801-1

2 Bauwerk Rohbau: 206 000 Euro
3 Bauwerk Technik: 437 600 Euro
4 Bauwerk Ausbau: 362 000 Euro
5 Einrichtung: 116 500 Euro

Netto - Baukosten: 1 122 100 Euro

 

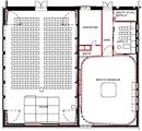
Akustische Wandelbarkeit durch Verschiebe- und Klappelemente

 

2000 - HBLA-URSPRUNG


Realisierung

sämtliche Büroleistungen.

Fertigstellung 2001